Building Modernization Project

Picture of preview of what the Pool Building will look like after remodel

The Project

The Twin Falls City Pool, originally built in 1988, has been a cornerstone of our community. Initially designed as a summer facility, the addition of the bubble in 1999 allowed year-round use, significantly increasing its popularity and wear. We're thrilled to announce a modernization project to bring the pool up to current standards and improve your experience.

Upcoming Enhancements Include:

  • Unisex Showers and Restrooms: Offering inclusive facilities for all.
  • ADA/Family Shower/Restroom: Ensuring access for everyone, including families and those with disabilities.
  • New Lobby: Featuring direct access from the parking lot for your convenience.
  • Multi-Purpose Space: A versatile area for programs, safety and training sessions, and community activities.
  • Improved Accessibility: Enhancing ease of movement throughout the facility.
  • Private Showers: Converting open showers into private spaces for added comfort.
  • Infrastructure Upgrades: Modernizing HVAC, plumbing, and electrical systems for improved reliability and efficiency.

This project represents a significant step forward in providing a welcoming, accessible, and up-to-date facility for the community. Stay tuned for more updates as we work to create a better Twin Falls City Pool experience for everyone!

Picture of preview of what the Pool Building will look like after remodel

Project Timeline

Building Closure: November 10 – Spring 2026

  • Front Desk Relocation: Our front desk will be conveniently relocated to the bubble entrance.
  • Temporary Facilities: Enjoy heated comfort with 8 showers and 3 restrooms set up in trailers in the parking lot.
  • Continued Services: While operating at reduced capacity, most of our services will remain available.

Spring – Summer 2026

  • Reopening Celebration: Look forward to the reopening of our upgraded facility at a date to be determined, featuring all the exciting improvements announced.

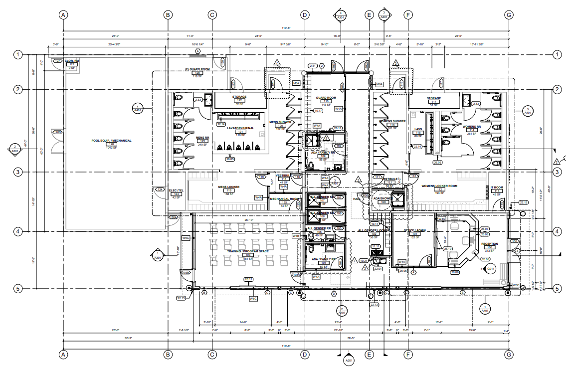
New Building Floor Plan

Updated floor plan of the pool remodel as of September 2025

Construction Progress in Photos!

  1. 1 IMG_7255
  2. 2 IMG_7253
  3. 3 IMG_7248
  4. 4 IMG_7249
  5. 5 IMG_7250
  6. 6 IMG_7251
  7. 7 IMG_7252